

























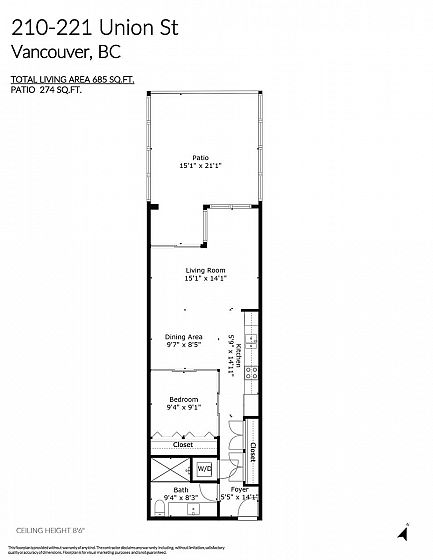
Property Description
Step into this stylishly renovated one-bedroom in a solid concrete building, offering a rare mix of comfort and cool. Inside, a chic new bathroom and thoughtful updates set the tone, while clean lines and modern finishes make it move-in ready. New appliances, concrete floors and 9 foot ceiling heights are just some of the perks of this home. The real showstopper is a large private patio, perfect for hosting friends, barbecuing, or just relaxing outdoors. All of this at a fantastic price, in a neighbourhood known for award-winning restaurants, cafes, bars, and boutique shops right on your doorstep. A home that feels as good as it looks, in a community you'll love to explore.
Features
Washer/Dryer Dishwasher Refrigerator Stove Microwave Oven Range Top
Amenities
Bike Room Exercise Centre Concierge Caretaker Trash Maintenance Grounds Hot Water Management Recreation Facilities Sewer Snow Removal