





















Property Description
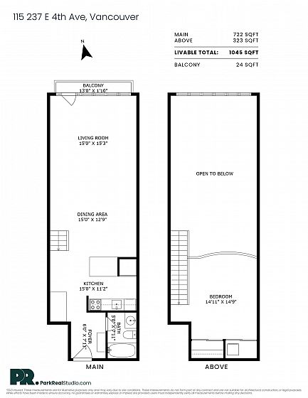
Experience authentic loft living at ARTWORKS, just steps from vibrant Main Street. This stunning live/work space features soaring 16-foot ceilings and an open, airy design. The tastefully renovated kitchen boasts a waterfall stone countertop, contemporary cabinetry, and new appliances, including a refrigerator and stove. Polished concrete in the main area complement the commercial-grade luxury vinyl plank in the entry, bathroom and kitchen. Upstairs, the loft level showcases industrial-style solid steel diamond flooring plate, all COMPLETED WITH PERMITS. Enjoy the rare bonus of a private balcony for plants or fresh air, plus access to a common gallery space for hosting events, secure bike storage, and a thriving artist community. All this in one of the city’s most dynamic neighbourhoods.
Features
Washer/Dryer Dishwasher Refrigerator Stove
Amenities
Bike Room Clubhouse Trash Maintenance Grounds Gas Management Recreation Facilities Sewer Snow Removal Water