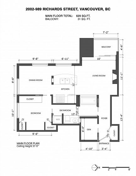
Property Description
Welcome to this spacious and bright upper floor 1 bedroom + den corner home in the Mondrian 1 by Bosa, perfectly located at the edge of Yaletown. With a unique floor plan offering flexibility and plenty of space, this home is flooded with natural light and features stylish wood shutters, stainless steel appliances, granite countertops, and laminate and tile throughout. Enjoy cozy evenings by the gas fireplace or unwind on your balcony with stunning city views. The building offers resort-style amenities including an exercise centre, hot tub, sauna, guest suite, and visitor parking. Plus, you’ll have 1 parking spot and a locker for added convenience. Steps away from Yaletown's trendy restaurants, retail, and transit, this home offers the perfect blend of comfort, style, and location.
Features
Washer/Dryer Dishwasher Refrigerator Stove Microwave
Amenities
Bike Room Exercise Centre Sauna/Steam Room Caretaker Trash Maintenance Grounds Gas Hot Water Management Recreation Facilities Sewer Water
