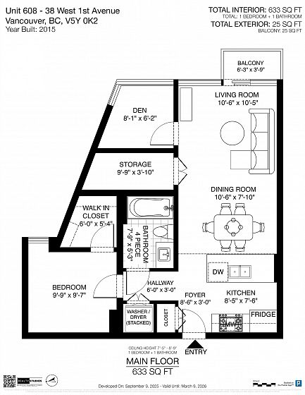
Property Description
Perfect floor plan for the Olympic Village one bedroom & den home you've been looking for. This layout offers every functional space a home can possess. Full sized appliances in kitchen, ample dining and living room space, well lit den, perfect for a home office, large flex/storage room and a walk in closet. Facing the quiet backside of the building, showered in natural sunlight but cooled by the homes's A/C. The home also includes parking, a storage locker and dedicated bike stall. Prime Olympic Village location steps to the sea wall, restaurants and grocery; a short walk to 2 skytrain options. The One offers an outdoor rooftop pool, fitness centre and party room. This home ticks every box, come see for yourself.
Features
Washer/Dryer Dishwasher Refrigerator Stove
Amenities
Bike Room Clubhouse Exercise Centre Maintenance Grounds Gas Hot Water
