Property Description
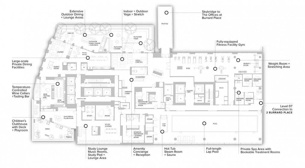
Perched high above Downtown Vancouver in the iconic One Burrard Place. South-West corner unit with breathtaking views of English Bay. Wraparound floor-to-ceiling windows flooding the home with natural light and framing sweeping ocean vistas. The open-concept kitchen features premium Gaggenau appliances, the spacious island, and seamless flow into the living and dining areas. Primary suite features a spa-inspired ensuite. Den is perfectully converted into huge walk-in-closet. Residents enjoy over 30,000 sq. ft. of world-class Club One amenities including a state-of-the-art fitness centre, indoor pool, sauna, hot tub, wine cellar, outdoor BBQ terrace, study/music rooms, 24-hr concierge and more. School catchment: Elsie Roy Elementary, King George Secondary, Kitsilano Secondary.
Features
Washer/Dryer Dishwasher Refrigerator Stove Microwave Oven
Amenities
Clubhouse Exercise Centre Recreation Facilities Concierge Caretaker Trash Maintenance Grounds Gas Hot Water Management Sewer Snow Removal Water
