Property Description
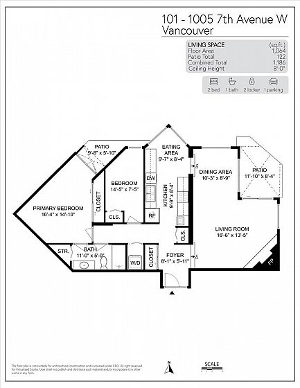
Break free from cookie-cutter condos with this truly unique home. A sunken living/dining area with a cozy brick electric fireplace opens to a spacious patio—ideal for relaxing or entertaining. The custom kitchen features quartz counters, sleek cabinetry, and a bright window-lined eating nook. The generous primary bedroom offers a custom closet, private patio, and semi-ensuite with heated floors. A second bedroom includes a built-in Murphy bed for flexibility. This turn-key home has smooth resurfaced ceilings, LED pot lights, custom blinds, and in-suite laundry. Includes storage locker, secure parking, and a stunning rooftop deck. Steps to SkyTrain, seawall, dog park, Granville Island, and more! **OPEN HOUSE Saturday, April 18, 2-4 pm**
Features
Washer/Dryer Dishwasher Refrigerator Stove Microwave
Amenities
Caretaker Trash Maintenance Grounds Management
