Property Description
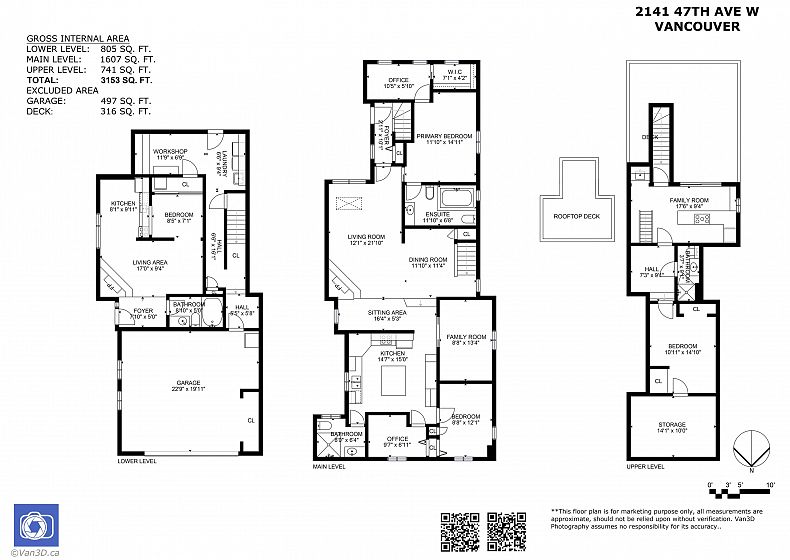
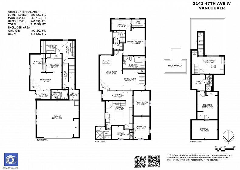
RS-5 KERRISDALE—Cash Flowing Today, Goldmine Tomorrow The unicorn: income-producing property with serious development upside on prime Kerrisdale street. Two suites already generating cash flow while you plan your next move.Developers: 33' x 118' RS-5 lot screaming for multi-family development in a neighbourhood where nothing comes available. Ever. Multi-gen families: Three distinct living levels—main floor 1BR suite, middle level 2BR primary home with media room, top floor 1BR loft with rooftop deck capturing Gulf Island views. Live in one, rent two, cash flow your mortgage. Investors: Immediate rental income, long-term appreciation play. Owner-occupied 40 years—solid structure, cosmetic opportunity to add serious value. Steps to Arbutus Greenway, Safeway, 41st Avenue, top schools.
