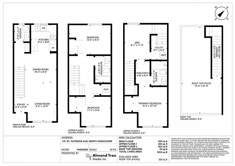
Property Description
Welcome to 147 St. Patrick’s Avenue in the heart of Lower Lonsdale. This stunning 3-bed + den, 2.5 bath, 1452sqft townhouse offers crisp design and a huge rooftop patio (an additional 320sqft!) with sweeping city & ocean views. Upon entering you’re greeted by refined finishes and floating stairs framed by glass, providing a feeling of modern luxury. The main level features a bright, open-concept living and dining area with sunny easterly exposure, seamlessly connected to a gourmet kitchen. Upstairs offers 2 spacious bedrooms, a full bath & laundry, while the top floor provides the primary suite, ensuite & a versatile den. Enjoy the ultimate LoLo lifestyle close to the Shipyards, breweries, shops, restaurants, rec centre, seawall & just a 14-minute walk to the Seabus. Open Sun 19th, 1-3pm.
Features
Washer/Dryer Dishwasher Refrigerator Stove
Amenities
Trash Maintenance Grounds Management Sewer Snow Removal
